
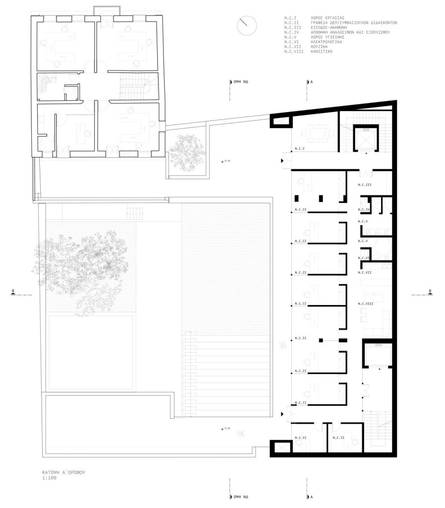
The proposal is structured around two complementary spatial strategies: the central courtyard and the perimeter circulation. The courtyard, a characteristic element of Mediterranean architecture, functions as the primary organizing core of the complex. The project is arranged around this protected, inward-facing space, which supports interaction and collective use. The student lounge, dining hall, semi-outdoor café, and main reception open directly onto the courtyard. An outdoor amphitheater further activates the space, accommodating academic and cultural events. The main stoa entrance frames the neoclassical building upon arrival, creating a gentle transition from the city.
A perimeter open-air circulation route frames the courtyard at first-floor level, forming sheltered and semi-open movement zones that maintain visual continuity throughout the complex and connect the restored neoclassical building with the new extension. Office spaces are arranged along this route, benefiting from natural light and direct views toward the courtyard.
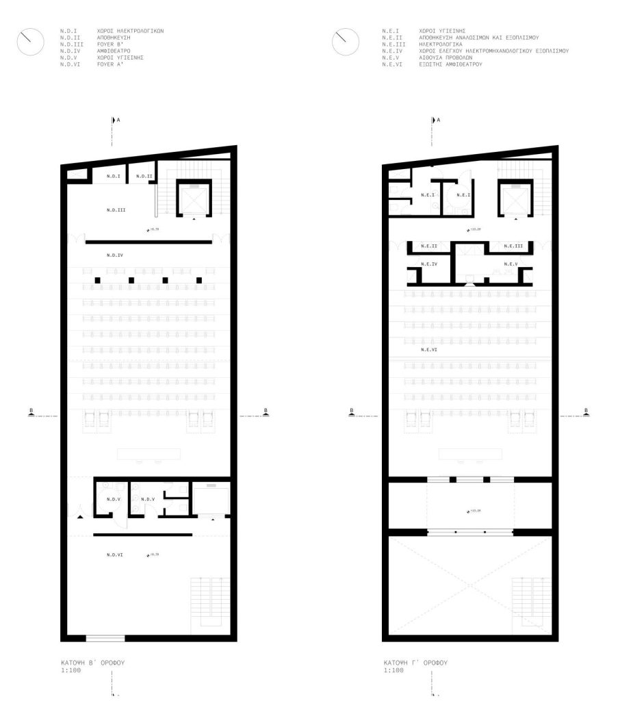
In addition to preserving the structural and material integrity of the neoclassical building, the proposal establishes visual and geometric continuity between the historic structure and the extension. The main volume of the new program is positioned adjacent to the six-storey apartment building, allowing the central open space to remain unobstructed. This configuration accommodates a 180-seat amphitheater on the third and fourth floors and serves as a clear backdrop to the complexity of the cityscape, highlighting the presence of the restored building within the ensemble.
3rd Prize in the Panhellenic Architectural Competition for the Restoration and Extension of the Karadeio Building in Chios
Programme: Educational Centre
Location: Chios, Greece
Year: 2025
Client: University of the Aegean
Area: 840 m²
Status: Competition Entry – 3rd Prize
Design Team: A. Papangelopoulos, M. Papangelopoulou, M. Panaretou












