
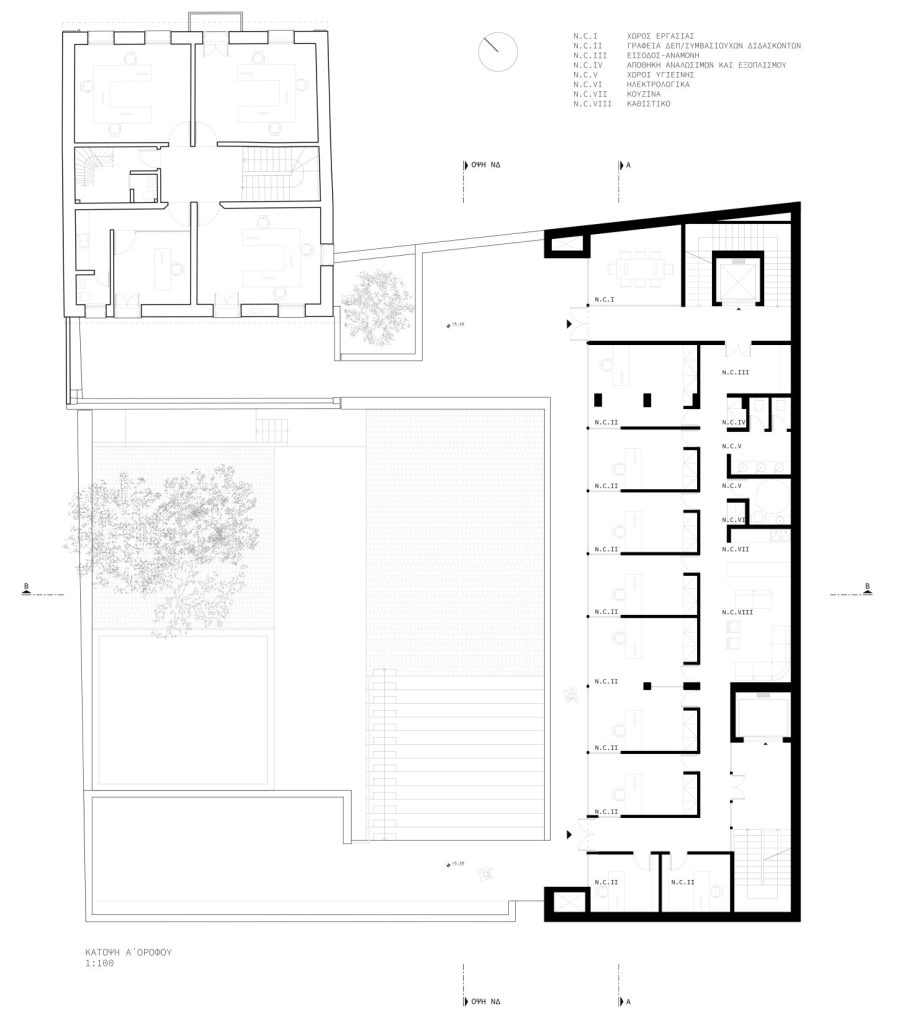
Η πρόταση οργανώνεται γύρω από δύο συμπληρωματικές χωρικές στρατηγικές: την κεντρική αυλή και την περιμετρική κίνηση. Η αυλή, χαρακτηριστικό στοιχείο της μεσογειακής αρχιτεκτονικής, λειτουργεί ως ο βασικός οργανωτικός πυρήνας του συγκροτήματος. Το κτήριο αναπτύσσεται γύρω από αυτόν τον προστατευμένο, εσωστρεφή χώρο, ο οποίος υποστηρίζει την αλληλεπίδραση και τη συλλογική χρήση. Η φοιτητική λέσχη, η αίθουσα εστιατορίου, το ημιυπαίθριο καφέ και ο κεντρικός χώρος υποδοχής ανοίγονται άμεσα προς την αυλή. Ένα υπαίθριο αμφιθέατρο ενεργοποιεί περαιτέρω τον χώρο, φιλοξενώντας ακαδημαϊκές και πολιτιστικές εκδηλώσεις.
Μια περιμετρική υπαίθρια διαδρομή στο επίπεδο του ορόφου πλαισιώνει την αυλή, διαμορφώνοντας στεγασμένες και ημιυπαίθριες ζώνες κίνησης που διατηρούν την οπτική συνέχεια στο σύνολο του συγκροτήματος και συνδέουν το αποκατεστημένο νεοκλασικό κτήριο με τη νέα επέκταση. Κατά μήκος της διαδρομής αυτής οργανώνονται οι χώροι γραφείων, εξασφαλίζοντας ελεγχόμενο φυσικό φωτισμό και άμεσο προσανατολισμό προς την αυλή.
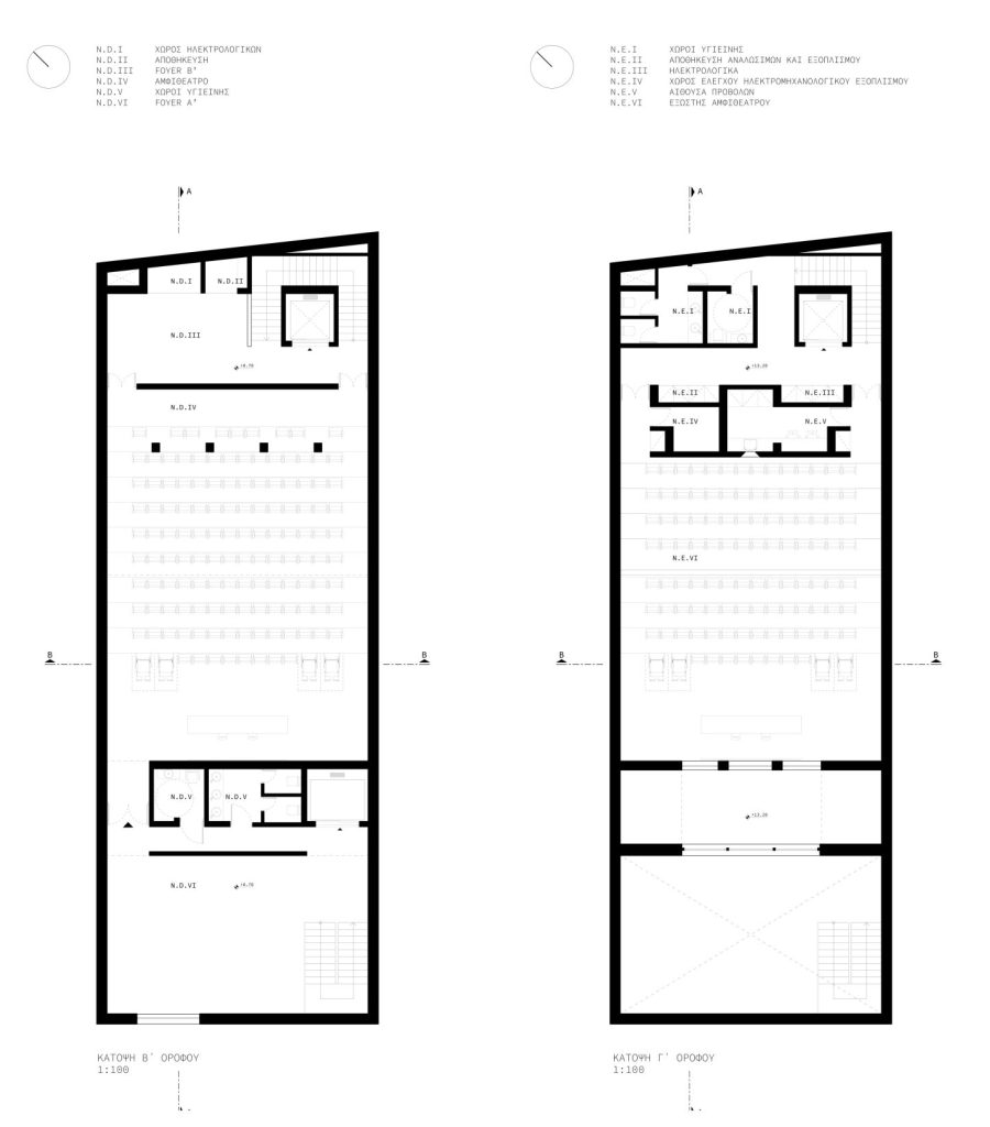
Η αποκατάσταση του υφιστάμενου νεοκλασικού κτηρίου αναπτύσσεται παράλληλα με μια ευρύτερη στρατηγική ένταξης. Πέρα από τη διατήρηση της δομικής και υλικής του ακεραιότητας, η πρόταση επιδιώκει την οπτική και γεωμετρική συνέχεια μεταξύ του ιστορικού κελύφους και της επέκτασης. Ο κύριος όγκος του νέου προγράμματος τοποθετείται προς την όμορη εξαώροφη πολυκατοικία, επιτρέποντας στον κεντρικό υπαίθριο χώρο να παραμείνει ελεύθερος. Η διάταξη αυτή επιτρέπει την ανάπτυξη αμφιθεάτρου 180 θέσεων στον τρίτο και τέταρτο όροφο, διατηρώντας παράλληλα την οπτική καθαρότητα και τη χωρική παρουσία του νεοκλασικού κτηρίου στο σύνολο.
3ο Βραβείο στον Πανελλήνιο Αρχιτεκτονικό Διαγωνισμό για την Αποκατάσταση και Επέκταση του Καράδειου κτίριου στην Χίο
Πρόγραμμα: Κτίριο εκπαίδευσης
Τοποθεσία: Χίος
Χρονολογία: 2025
Αγωνοθέτης: Πανεπιστήμιο Αιγαίου
Επιφάνεια: 840 m²
Κατάσταση: Βραβευμενη μελέτη
Ομάδα Έργου: Α. Παπαγγελόπουλος, Μ. Παπαγγελοπούλου, Μ. Παναρέτου











